Персональний сайт рієлтора

Анна

Вітаю і щіро сподіваюсь, що все гаразд
Працюю в компанії "LTD Estate" зацікавлена своею роботаю. Допомогаю людям знайти житло їх мрії! Продажа і оренда нерухомості в місті Дніпро. Надаю допомогу у підборі житла під держ. програми «єОселя» під 3% та 7%. Підтримую супровід угод п.600, 280,719
SF-2-955-170

Продам квартиру-студію

Розташування: Дніпро, Центральний район, Парк Л.Глоби, Старокозацька вул., 52
1 Кімнат
36 м2
6/21 поверх
Ціна
33 500 $

Інформація

Продам 1-кімнатну квартиру в житловому комплексі бізнес-класу «Central Park», вул.Старокозацька буд.52, Центральний район, мікрорайон Центр.

Код об'єкта SF-2-955-170

Поряд розташованні: Сквер героїв, парк "Глоби", фітнес центр, магазини, супермаркет, школи, дитячий садок, лікарні, міні-зоопарк, банк, кафе, відділення Нової пошти, зупинка транспорта.

Забудовник ООО "Атлант".

Секція 2, будинок 52. Будинок зданий у 2021 році. Продаж за документами прав власності.

6-й поверх 21-поверхового монолітно-каркасного будинку. Консьерж. ОСББ. Контрольований доступ. Безшумні ліфти ОТІS. Право власності.

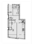
Загальна площа - 36,2 кв.м: кухня 9 кв.м, 1 кімната, 1 санвузол.

Квартира у будівельному стані від забудовника.

Вартість - $33,5 тис + послуги АН.

Працюємо по всьому Дніпру, є й інші варіанти – підберемо саме Вашу квартиру, пишіть запит.

Більше актуальних об'єктів у нашому телеграм чат-боті HataHome
Задавайте параметри та отримуйте свіжі пропозиції.

Ми готові допомогти Вам з усіма аспектами купівлі та оформлення нерухомості в рамках державних програм:
- Державна програма іпотечного кредитування «єОселя» під 3% та 7%.
- Постанова №206, №214, №280, №719.
- Сетрифікати на купівлю житла «єВідновлення».

33 500 $ вартість об'єкта
925 $ ціна за м2
36.20 м2
1 кімнат
6 Поверх
21 К-ть поверхів

Параметри

центральна Вода:
центральне Опалення:
моноліто-каркас Матеріал стін:

Додатково

Дата оновлення інформації: 25.06.2025 13:54;