SF-3-307-963

Продам 2-кімнатну квартиру

Розташування: Київ, Дніпровський район, Воскресенка, Сірожупанників вул., 36
2 Кімнат
45 м2
5/5 5
Ціна
52 000 $

Інформація

Продам 2-кімнатну квартиру, вул. Сірожупанників (Валентина Сєрова), 36, Дніпровський район, Воскресенка.

Код об'єкта SF-3-307-963

Добре розвинена інфраструктура: зупинка транспорту в 3х хвилинах ходьби від будинку, гарна розв'язка до метро Почайна, Дарниця, Лівобережна. Поруч озеро з парковою зоною.

5-й поверх 5-поверхового цегляного будинку.

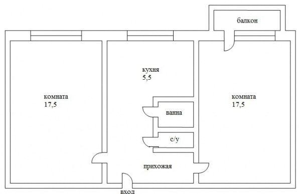
Загальна площа - 45 кв.м: кухня 7 кв.м, 2 окремі кімнати, балкон, санвузол, передпокій.

У квартирі житловий стан.

Вартість - $52 тис + послуги АН.

Більше актуальних об'єктів у нашому телеграм чат-боті HataHome
Задавайте параметри та отримуйте свіжі пропозиції.

Надаємо допомогу у кредитуванні (Державна програма «єОселя» під 3% (для військовослужбовців, медичних працівників, наукових, педагогічних працівників навчальних закладів державної обл комунальної форми власності))

52 000 $ вартість об'єкта
1 156 $ ціна за м2
45 м2
2 кімнат
5 Поверх
5 К-ть поверхів

Параметри

центральна Вода:
центральне Опалення:
цегла Матеріал стін:

Додатково

Дата оновлення інформації: 22.04.2026 17:33;