SF-3-292-271

Продам 1-кімнатну квартиру

Розташування: Київ, Дарниця, Дніпровський район, ДВРЗ, Алматинська вул., 39З
1 Кімнат
38 м2
14/16 14
Ціна
43 000 $

Інформація

Продам 1-кімнатну квартиру, вул. Алматинська, 39-з, Дніпровський район, ДВРЗ.

Код об'єкта SF-3-292-271

Поруч хороша інфраструктура для тихого, сімейного життя, поруч багато доглянутих парків, ліс, супермаркети, школи, аптеки, лікарні, біля дому зупинка громадського транспорту та все що необхідно для комфортного життя.

14-й поверх 16-поверхового цегляного будинку.

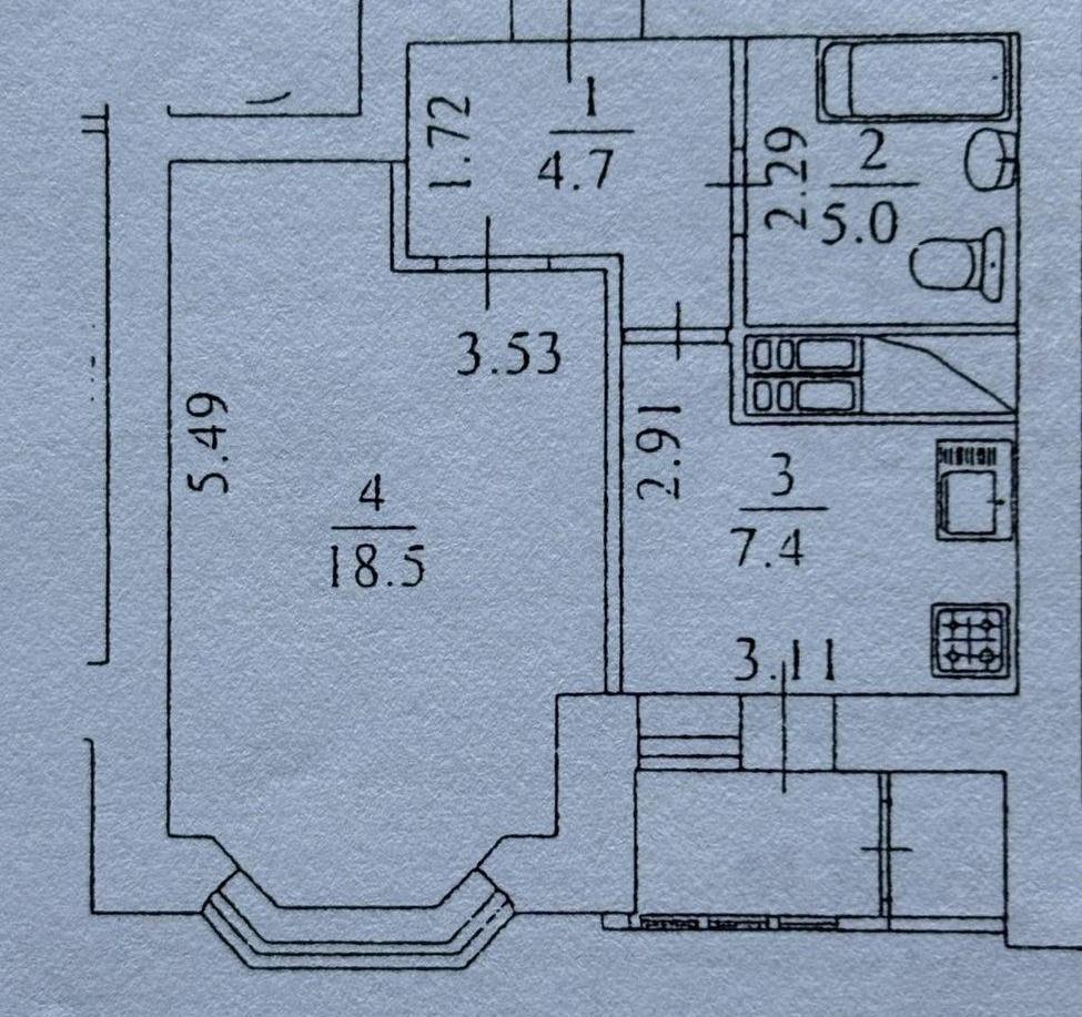
Загальна площа - 38,5 кв.м: кухня 7,4 кв.м, кімната 18,5 кв.м.

У квартирі житловий стан. Продається з меблями та технікою

Вартість - $43 тис + послуги АН.

Більше актуальних об'єктів у нашому телеграм чат-боті HataHome
Задавайте параметри та отримуйте свіжі пропозиції.

Надаємо допомогу у кредитуванні (Державна програма «єОселя» під 3% (для військовослужбовців, медичних працівників, наукових, педагогічних працівників навчальних закладів державної обл комунальної форми власності))

Інфраструктура

Громадський транспорт: метро - Дарниця;
43 000 $ вартість об'єкта
1 132 $ ціна за м2
38 м2
1 кімнат
14 Поверх
16 К-ть поверхів

Параметри

центральна Вода:
центральне Опалення:
цегла Матеріал стін:

Додатково

Дата оновлення інформації: 16.03.2026 17:48;