SF-3-269-288

Продам 1-кімнатну квартиру

Розташування: Бровари, Київська область, Київська вул.
1 Кімнат
34 м2
4/5 поверх
Ціна
50 500 $

Інформація

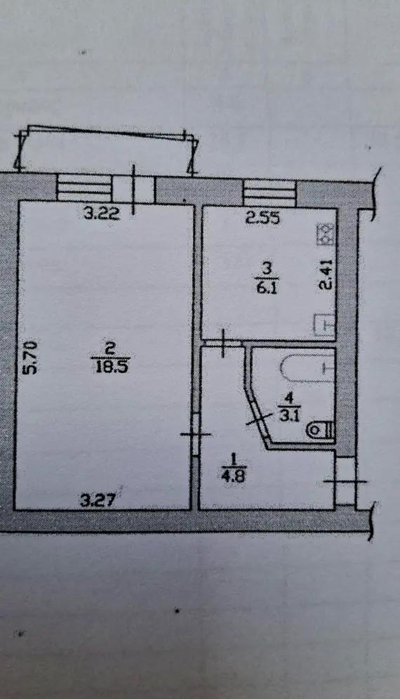
В продажі однокімнатна квартира в Броварах. (вул.Київська).

Код об’єкта: SF-3-269-288

4/5 поверх | Будинок: цегляний.

Загальна площа: 33.50 м²
Житлова площа: 18.50 м²
Площа кухні: 6.10 м²

Стан квартири: Квартира має косметичний ремонт, від власника залишаться меблі та техніка.

Ціна: $50.5 тис. + послуги АН

Безкоштовна консультація з усіх питань оформлення іпотеки, а також участі у держпрограмах:

єВідновлення, Постанови №206, №214, №280, №719

$ Платимо гроші за рекомендацію! Отримайте бонус, якщо по вашій рекомендації оформлена угода через нашу АН.

50 500 $ вартість об'єкта
1 507 $ ціна за м2
33.50 м2
1 кімнат
4 Поверх
5 К-ть поверхів

Параметри

центральна Вода:
є Газ:
центральне Опалення:

Додатково

Дата оновлення інформації: 23.01.2026 15:30;