SF-3-267-539

Продам 2-кімнатну квартиру в новобудові

Розташування: Київ, Лук'янівська, Шевченківський район, Татарка, Половецька вул.
2 Кімнат
81 м2
3/16 поверх
Ціна
106 600 $

Інформація

Продам 2-кімнатну квартиру на вулиці Половецька 4, район Лук'янівка, Татарка мікрорайон, станція метро Лук'янівська-20 хв.пішки.

Код об’єкта SF-3-267-539

3 /16 поверх монолітно-каркасного будинку - новобудова 2025 року від забудовника Інтергалбуд.

Особливости комплексу: - червона цегла,утеплення 150 мм, вентильований фасад, кришна котельня , підземний паркінг з ліфтом. Централізована система контролю доступу, цілодобова охорона та консьєрж-сервіс, зовнішні та внутрішні камери відеоспостереження. Облицювання - Гранітна італійська плитка. Вікна німецькі з покриттям антивідблиску , 2х камерні, всередині - аргон.


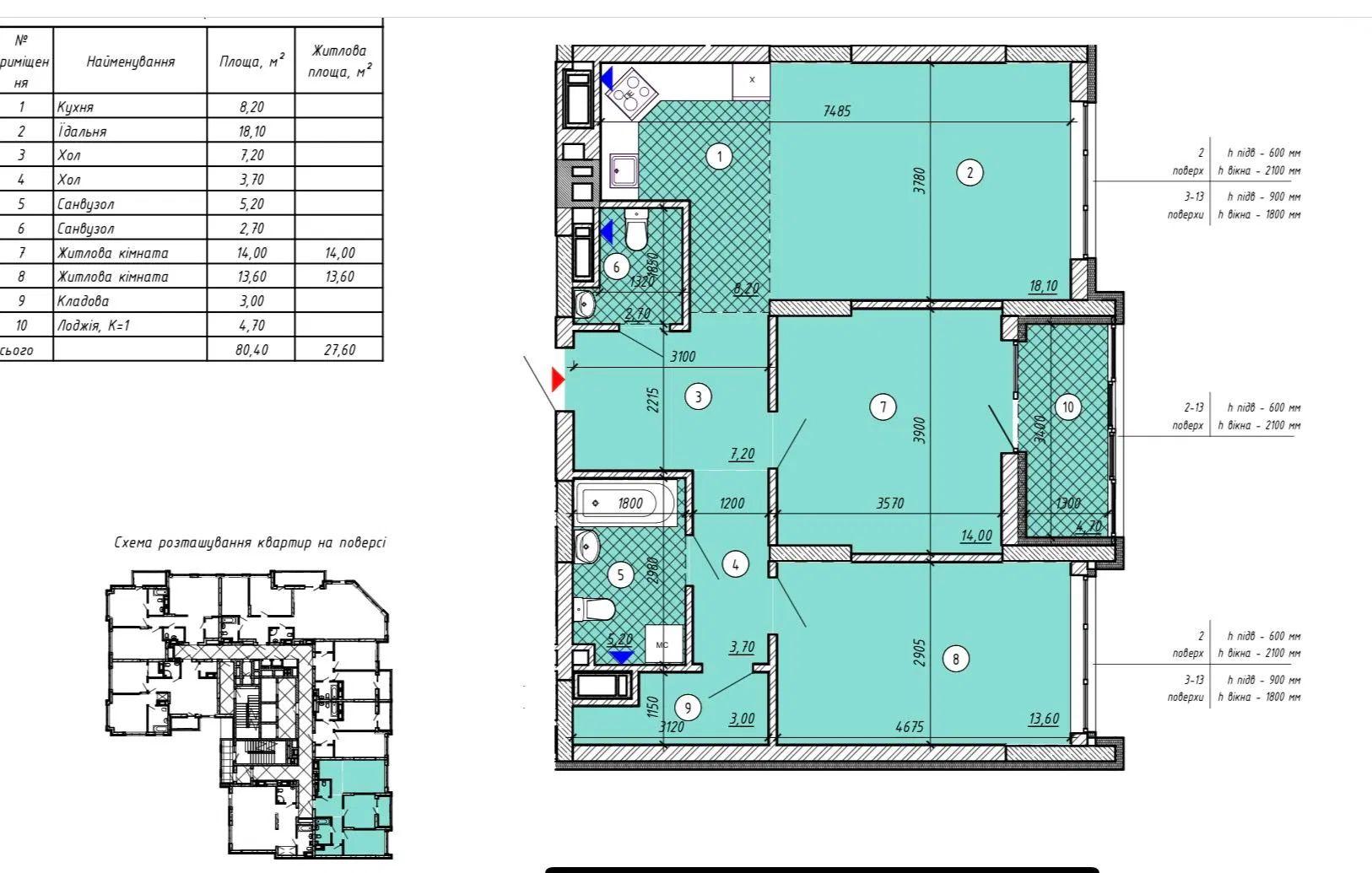
Загальна площа: 81,3 м²

Площа кухні- Їдальні : 26 м²

Особливості планування - кухня-їдальня ,2 кімнати,2 сан.вузла,лоджія,комора.

Стан квартири: будівельному стані.

Ціна: $ 106,6 тис + послуги АН. Перепоступка.

Хочеш більше варіантів? Пиши або переходь в Telegram-бот HataHomebot — шукає за параметрами, як рієлтор

Безкоштовна консультація з усіх питань оформлення іпотеки, а також участі у держпрограмах:

єВідновлення, Постанови №206, №214, №280, №719

$ Платимо гроші за рекомендацію! Отримайте бонус, якщо по вашій рекомендації оформлена угода через нашу АН.

Інфраструктура

Громадський транспорт: метро - Лук'янівська (20 хв. пішки);
106 600 $ вартість об'єкта
1 311 $ ціна за м2
81.30 м2
2 кімнат
3 Поверх
16 К-ть поверхів

Параметри

центральна Вода:
автономне Опалення:
моноліто-каркас Матеріал стін:

Додатково

Дата оновлення інформації: 19.01.2026 15:01;