SF-3-254-115

Продам 2-кімнатну квартиру, ЖК «Левада 2»

Розташування: Харків, Левада, Прилеглі до центру, Левада, Лисаветинська вул.
2 Кімнат
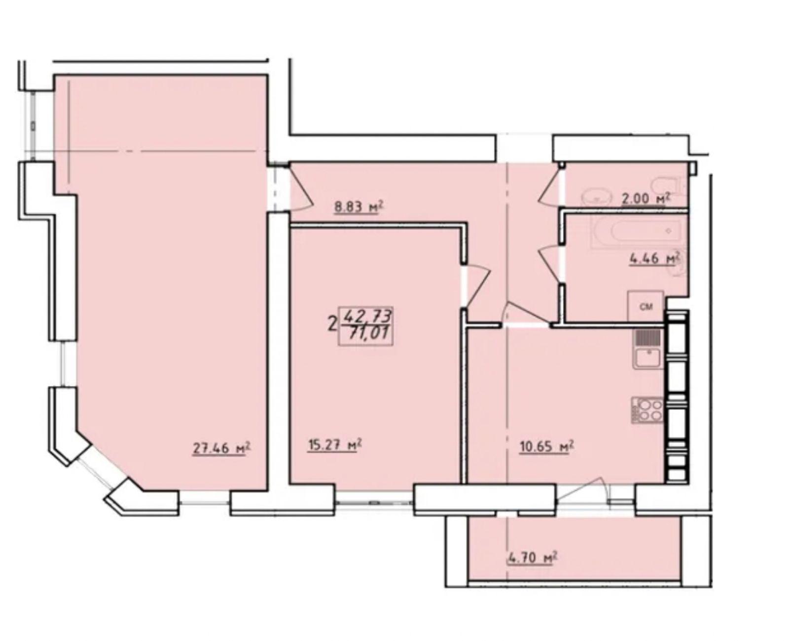
71 м2
1/16 поверх
Ціна
62 500 $

Інформація

Продам 2-кімнатну квартиру в житловому комплексі комфорт-класу "Левада-2", вул. Заливна, 6, біля метро "просп. Гагаріна".

Код об'єкта SF-3-254-115

Відмінний район, 5 хвилин від метро "просп. Гагаріна", поруч супермаркети, ринок, наземний транспорт, кафе, автовокзал та залізнична станція.

Забудовник Житлобуд - 1.

Продаж за документами.

1-й поверх 16-поверхового цегляного будинку.

Загальна площа –71,90 кв.м: кухня 12,50 кв.м., 2 кімнати.

У квартиры будівельний стан.

Вартість – $62,5 тис. + послуги АН.

Більше актуальних об'єктів у нашому телеграм чат-боті HataHome
Задавайте параметри та отримуйте свіжі пропозиції.

Інфраструктура

Громадський транспорт: метро - Левада (10 хв. пішки, 3 хв. на транспорті);
62 500 $ вартість об'єкта
878 $ ціна за м2
71.21 м2
2 кімнат
1 Поверх
16 К-ть поверхів

Параметри

центральна Вода:
центральне Опалення:
цегла Матеріал стін:

Додатково

Дата оновлення інформації: 11.12.2025 23:41;