SF-3-251-939

Продам 3-кімнатну квартиру

Розташування: Київ, Дніпровський район, ДВРЗ, Алматинська вул., 70
3 Кімнат
52 м2
2/5 поверх
Ціна
40 500 $

Інформація

Продам 3 кімн. квартиру в Дніпровському районі по вулиці Алматинській. м. Київ.

Код об'єкта: SF-3-251-939

2/5 пов. цегляного будинку.

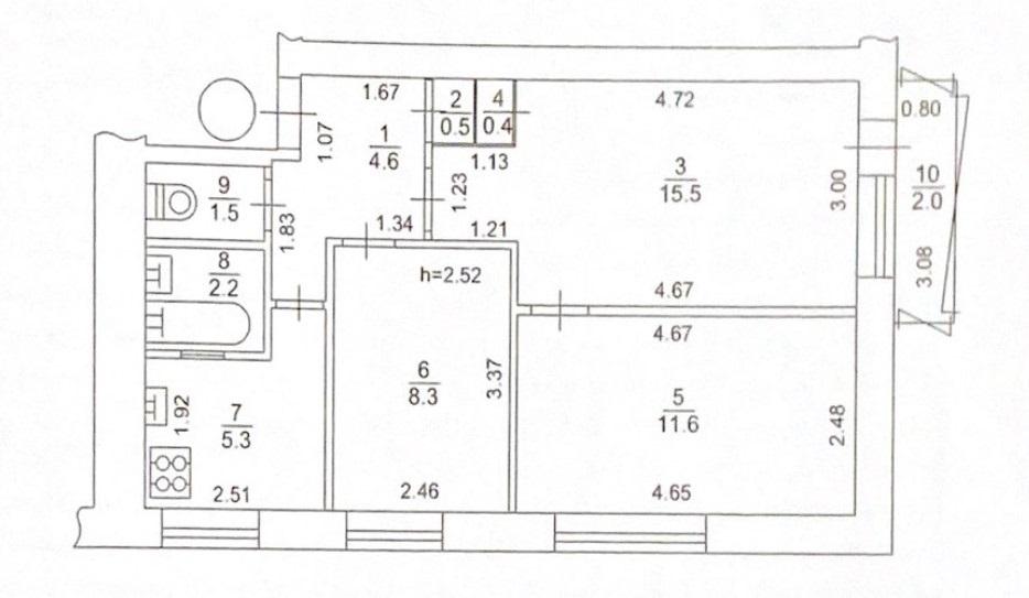
Площа квартири 51.9 м², Житлова площа 35.4 м², кухня 5.3 м².

Вартість - 40,5 тис. у.о. + послуги АН.

Квартира з радянським ремонтом, але чиста, акуратна. На полу паркет, дерев'яні склопакети, в с/в фарба. Все в нормальному стані - можна заїхати і жити, все працює.
Можливо зробити ремонт і перепланування (гіпсові перегородки між кімнатами). Чисте парадне, теплий будинок.

Поряд розташована вся необхідна інфраструктура: магазини, аптеки, дит.садки, школа, кінцева зупинка міського транспорту та ін. Будинок знаходиться біля лісу (свіже повітря, спорт, відпочинок..). В кілометрі від будинку озеро Лісове

Ми готові допомогти Вам з усіма аспектами купівлі та оформлення нерухомості в рамках державних програм:
- Державна програма іпотечного кредитування «єОселя» під 3% та 7%.
- Постанова №206, №214, №280, №719.
- Сетрифікати на купівлю житла «єВідновлення».

Інфраструктура

Заклади освіти: школа, дитсадок;
Банківськи послуги: відділення банку, банкомат, термінал прийому платежів, пункт обміну валют;
Побутовий сервіс: мінімаркет, супермаркет, ринок, парковка перед будинком, аптека, перукарня, пошта;
Релаксаційні сервіси: парк (сад), дитячий майданчик, ліс, озеро / річка;
Обʼєкти громадського харчування: кафе, ресторан;
40 500 $ вартість об'єкта
780 $ ціна за м2
51.90 м2
3 кімнат
2 Поверх
5 К-ть поверхів

Параметри

центральна Вода:
є Газ:
центральне Опалення:
холодна вода, гаряча вода, газ, опалення Лічильники:
виділена лінія Інтернет:

Доброустрій

Побутова техніка: газова плита, духовка газова, холодильник;
Безпека: домофон, кодовий замок, гратки на вікнах, броньовані двері;

Додатково

Власність: приватна;
Дата оновлення інформації: 10.12.2025 12:39;