SF-3-247-470

Продам 2-кімнатну квартиру в новобудові, ЖК Henesi House

Розташування: Київ, Лук'янівська, Шевченківський район, Лук'янівка, Нагірна вул., 18/16
2 Кімнат
70 м2
14/25 поверх
Ціна
115 000 $

Інформація

Продам 2-кімнатну квартиру, вул. Нагірна, буд. 18/16, ЖК «Henesi House», Татарка, станція метро "Лук'янівська" - 15 хв. на транспорті.

Код об’єкта SF-3-247-470

14/25 пов. монолітно-каркасного будинку.
Генератор, працюють ліфти та комунікації.

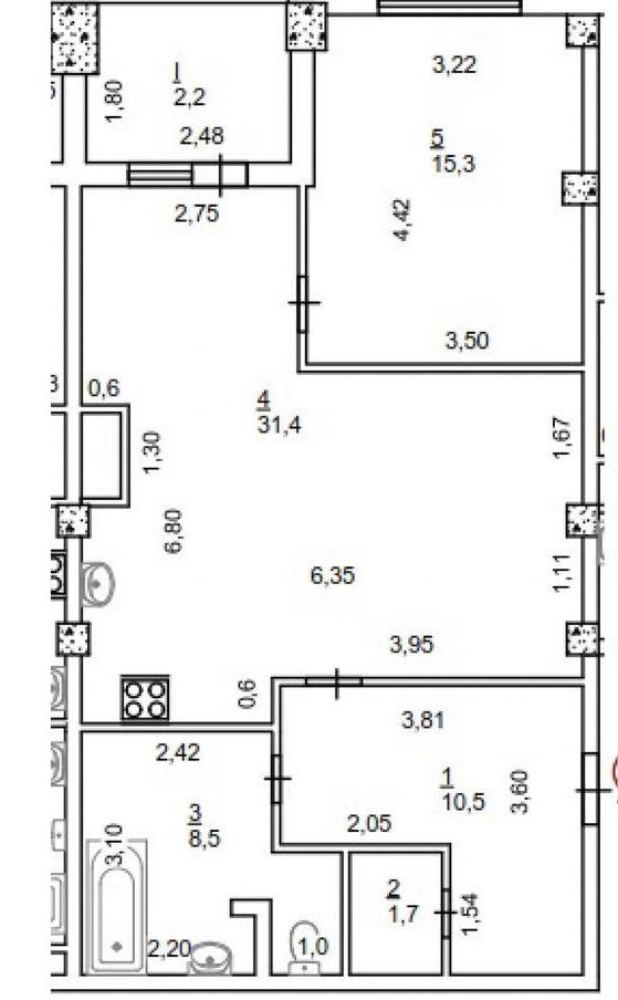
Загальна площа: 69.6 м²
Площа кухні: 31.4 м²
Велика кухня-вітальня, окрема спальня.

Квартира після будівельників, під ремонт.

Ціна: $115 тис + послуги АН

Безкоштовна консультація з усіх питань оформлення іпотеки, а також участі у держпрограмах:
єВідновлення, Постанови №206, №214, №280, №719

Платимо гроші за рекомендацію! Отримайте бонус, якщо по вашій рекомендації оформлена угода через нашу АН.

Інфраструктура

Громадський транспорт: метро - Лук'янівська (15 хв. на транспорті);
115 000 $ вартість об'єкта
1 652 $ ціна за м2
69.60 м2
2 кімнат
14 Поверх
25 К-ть поверхів

Параметри

центральна Вода:
автономне Опалення:
моноліто-каркас Матеріал стін:

Додатково

Дата оновлення інформації: 05.12.2025 19:36;