SF-3-232-734

Продам 2-кімнатну квартиру

Розташування: Бровари, Київська область, Чорновола В'ячеслава вул., 9
2 Кімнат
69 м2
5/12 поверх
Ціна
85 000 $

Інформація

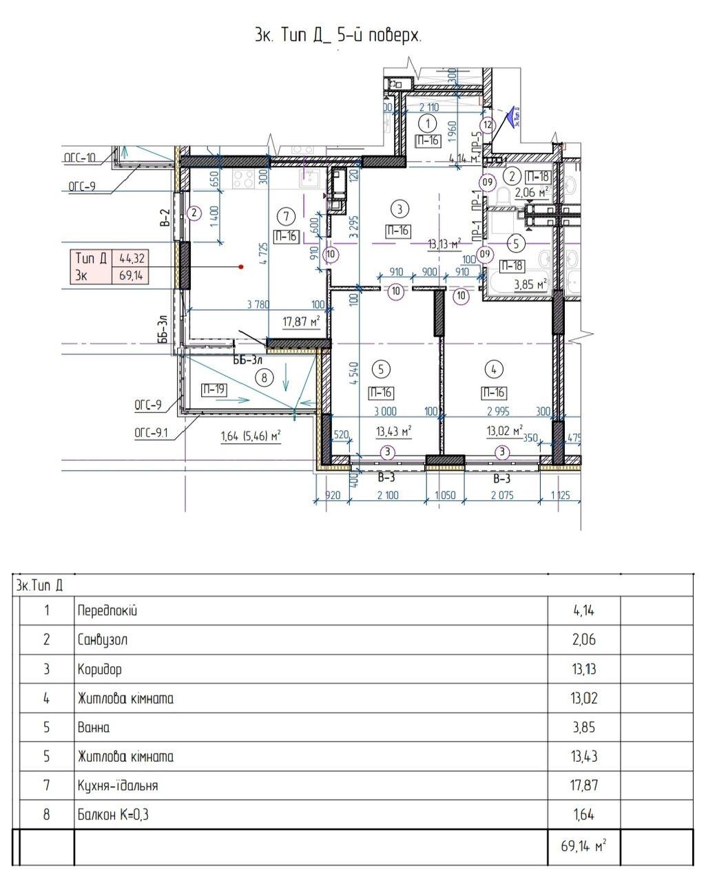
Продам 2-кімнатну квартиру у житловому комплексі бізнес-класу «Krona Park 2», будинок 9, Броварський район, місто Бровари, станція метро "Лісова" — 20 хв. на траспорті.

Код об’єкта SF-3-232-734.

5/12 поверх | Будинок: ЖК бізнес-класу, здача будинку 4 квартал 2025 року.
Проєкт від: Alliance Novobud.

Загальна площа: 69.1 м².
Площа кухні: 17.8 м².
Особливості планування: 2 окремі кімнати, 1 балкон, 1 роздільний санвузол, передпокій.

Стан квартири — після будівельників.
Меблі + техніка — відсутні.

Ціна: $ 85 тис. + послуги АН

ПЕРЕПОСТУПКА

Безкоштовна консультація з усіх питань оформлення іпотеки, а також участі у держпрограмах:
єВідновлення, Постанови №206, №214, №280, №719.

85 000 $ вартість об'єкта
1 229 $ ціна за м2
69.14 м2
2 кімнат
5 Поверх
12 К-ть поверхів

Параметри

центральна Вода:
автономне Опалення:

Додатково

Дата оновлення інформації: 15.01.2026 12:54;