SF-3-232-269

Продам 2-кімнатну квартиру

Розташування: Київ, Оболонський район, Оболонь, Богатирська вул., 2
2 Кімнат
48 м2
8/9 поверх
Ціна
65 500 $

Інформація

Продам 2-кімнатну квартиру, вул. Богатирська буд. 2, Оболонський район, Оболонь, ст.м. Мінська або Героїв Дніпра 10 хв. пішки, "Почайна" 15 хв. пішки.

Код об'єкта SF-3-232-269

Поряд розташованні: магазини, супермаркет, школи, дитячий садок, поліклініка, аптека, ринок, стадіон, салон краси, церква, банк, кафе, відділення Нової пошти, станція метро, зупинка транспорту.

8-й поверх 9-ти поверхового будинку, "чеський проект".

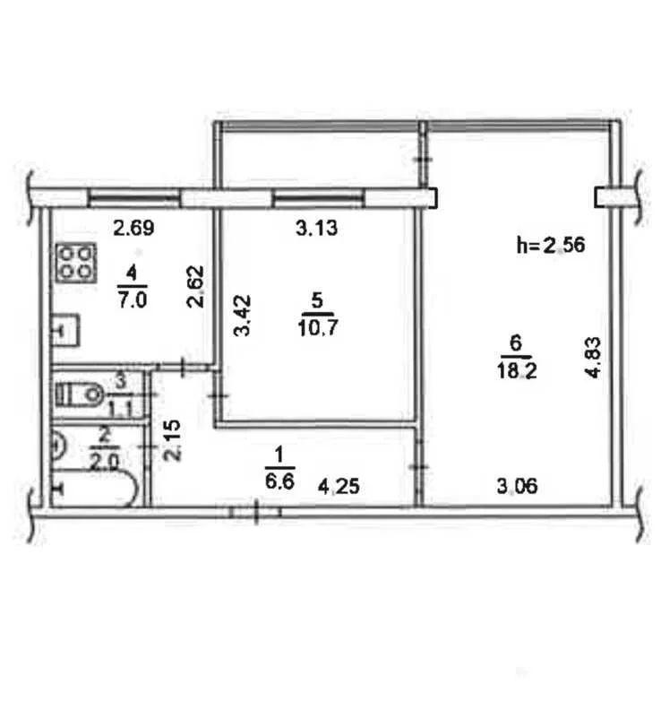
Загальна площа - 47,9 кв.м: кухня 7кв.м, 2 окремі кімнати. Планування все окремо. Вікна у двір.

Стан квартири житловий. Велика кімната з еркером, склопакети, кондиціонер, бойлер.

Вартість - $65,5 тис. + послуги АН.

Більше актуальних об'єктів у нашому телеграм чат-боті HataHome.
Задавайте параметри та отримуйте свіжі пропозиції.

Надаємо допомогу у кредитуванні (Державна програма «єОселя» під 3% (для військовослужбовців, медичних працівників, наукових, педагогічних працівників навчальних закладів державної обл комунальної форми власності)).

65 500 $ вартість об'єкта
1 365 $ ціна за м2
48 м2
2 кімнат
8 Поверх
9 К-ть поверхів

Параметри

центральна Вода:
центральне Опалення:
панель Матеріал стін:

Додатково

Дата оновлення інформації: 29.10.2025 12:59;