SF-3-219-406

Продам 1-кімнатну квартиру, ЖК Хотів

Розташування: Хотів, Київська область, Обухівський район, Партизанська вул.
1 Кімнат
43 м2
2/5 поверх
Ціна
60 000 $

Інформація

Продам 1-кімнатну квартиру у житловому комплексі комфорт-класу «Хотів», вул. Партизанська, Обухівський район, Хотів, станція метро "Теремки" — 10 хв. на транспорті.

Код об’єкта SF-3-219-406.

2/5 поверх | Будинок: ЖК комфорт-класу, індивідуальне газове опалення, зданий у експлуатацію.
Забудовник: «Форум-Житлобуд».

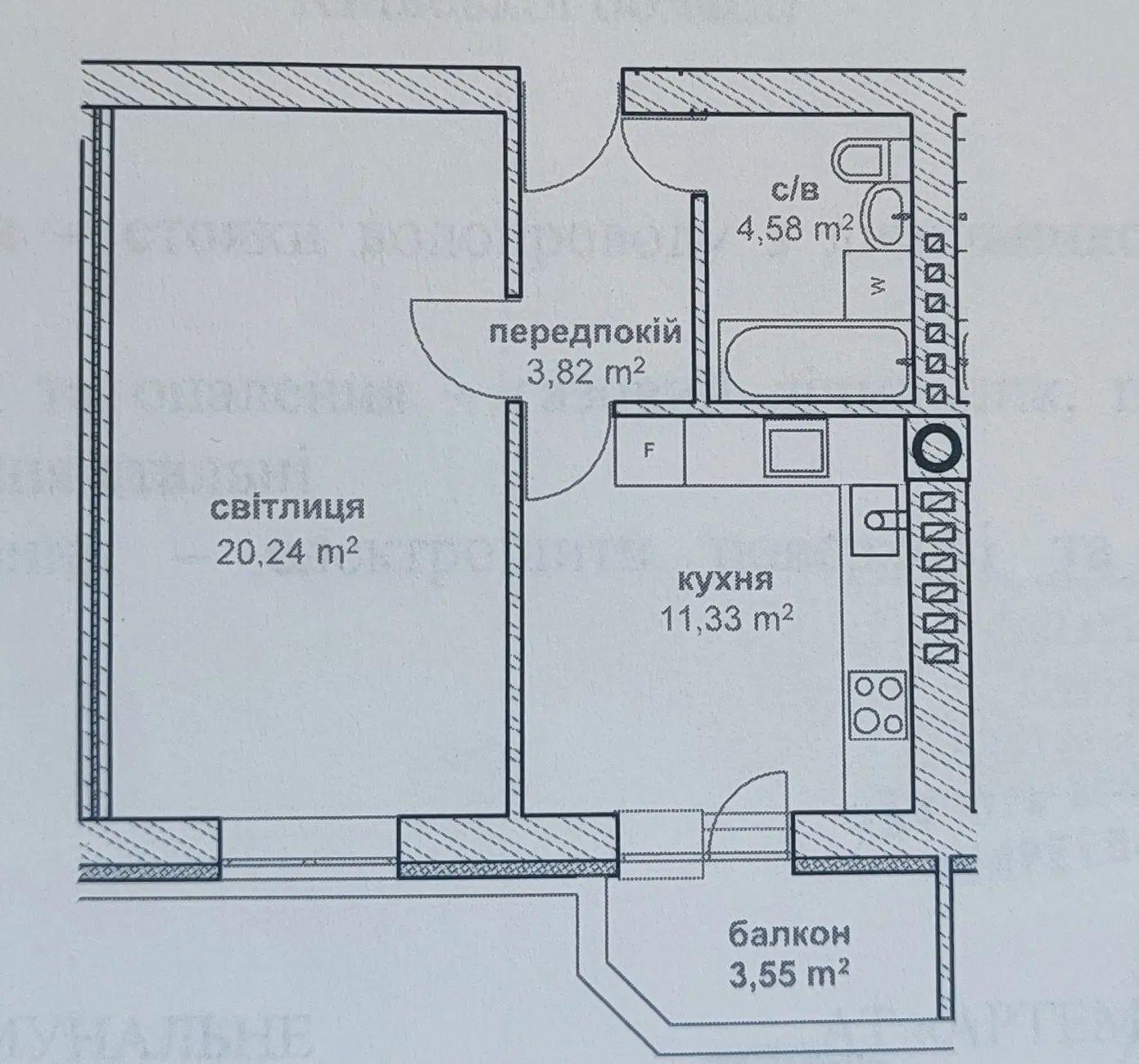
Загальна площа: 43 м².
Площа кухні: 11,3 м².
Особливості планування: 1 окрема кімната, 1 балкон, 1 суміжний санвузол, передпокій.

Стан квартири — євроремонт.
Меблі + техніка — є.

Ціна: $ 60 тис. + послуги АН.

Хочеш більше варіантів?
Пиши або переходь в Telegram-бот HataHomebot — шукає за параметрами, як рієлтор.

Безкоштовна консультація з усіх питань оформлення іпотеки, а також участі у держпрограмах:
єВідновлення, Постанови №206, №214, №280, №719.

Платимо гроші за рекомендацію!
Отримайте бонус, якщо по вашій рекомендації оформлена угода через нашу АН.

60 000 $ вартість об'єкта
1 395 $ ціна за м2
43 м2
1 кімнат
2 Поверх
5 К-ть поверхів

Параметри

центральна Вода:
центральне Опалення:
цегла Матеріал стін:

Додатково

Дата оновлення інформації: 28.11.2025 11:22;