SF-3-202-360

Продам 2-кімнатну квартиру, ЖК Европейське місто

Розташування: Крюківщина, Київська область, Бучанський район, Жулянська вул.
2 Кімнат
65 м2
7/11 поверх
Ціна
95 000 $

Інформація

Продам 2-кімнатну квартиру у житловому комплексі комфорт-класу «Європейське місто», вул. Жулянська, Бучанський район, Крюківщина, станція метро "Академмістечко" або "Теремки" - 15 хв. на транспорті.

Код об'єкта SF-3-202-360

Поряд розташованні: магазини, супермаркет, школи, дитячий садок, поліклініка, аптека, ринок, салон краси, банк, кафе, відділення Нової пошти, зупинка транспорту.


7/10 поверх | Будинок: ЖК бізнес-класу, індивідуальне газове опалення, зданий у експлуатацію.
Забудовник: «Мартинов».

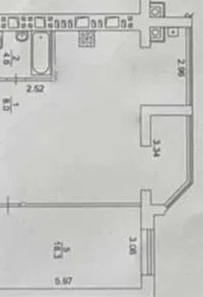
Загальна площа: 65 м².
Площа кухні: 15 м².
Особливості планування: 2 кімнати, 1 суміжний санвузол, передпокій.

Стан квартири — євроремонт.
Меблі + техніка — є.

Ціна: $ 95 тис. + послуги АН.

Хочеш більше варіантів?
Пиши або переходь в Telegram-бот HataHomebot — шукає за параметрами, як рієлтор.

Безкоштовна консультація з усіх питань оформлення іпотеки, а також участі у держпрограмах:
єВідновлення, Постанови №206, №214, №280, №719.

Платимо гроші за рекомендацію!
Отримайте бонус, якщо по вашій рекомендації оформлена угода через нашу АН.

95 000 $ вартість об'єкта
1 464 $ ціна за м2
64.90 м2
2 кімнат
7 Поверх
11 К-ть поверхів

Параметри

центральна Вода:
центральне Опалення:
цегла Матеріал стін:

Додатково

Дата оновлення інформації: 06.09.2025 13:32;