SF-3-201-349

Продам 1-кімнатну квартиру, ЖК Krona Park 2

Розташування: Бровари, Київська область, Чорновола В'ячеслава вул., 8
1 Кімнат
41 м2
8/12 поверх
Ціна
45 000 $

Інформація

Продам 1-кімнатну квартиру у житловому комплексі бізнес-класу «Krona Park 2», буд 8, Броварський район, місто Бровари, станція метро "Лісова" — 20 хв. на транспорті

Код об'єкта SF-3-201-349

Розвинена інфраструктура: у пішій доступності супермаркет
ТРЦ, парк, зелена зона, дитячий садок, дитячий майданчик.

Забудовник "Alliance Novobud".

Здача будинку другий квартал 2026 року.

8-й поверх 12-поверхового будинку.

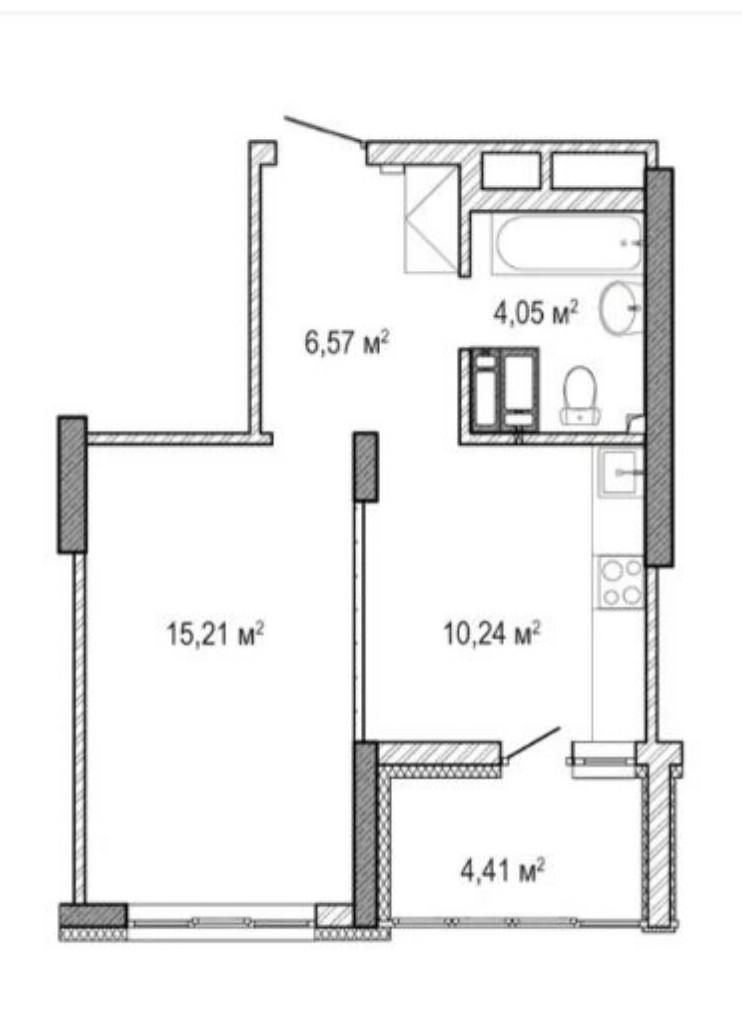
Загальна площа - 41 кв.м., кухня 16 кв.м, 1 кімната

У квартирі будівельний стан.

Вартість - $45 тис + послуги АН.
Продаж по перепоступці (навпіл)

Надаємо допомогу у кредитуванні (Державна програма «єОселя» під 3% (для військовослужбовців, медичних працівників, наукових, педагогічних працівників навчальних закладів державної обл комунальної форми власності))

45 000 $ вартість об'єкта
1 098 $ ціна за м2
41 м2
1 кімнат
8 Поверх
12 К-ть поверхів

Параметри

центральна Вода:
центральне Опалення:

Додатково

Більше актуальних об'єктів у нашому телеграм чат-боті HataHome Задавайте параметри та отримуйте свіжі пропозиції.

Дата оновлення інформації: 07.10.2025 23:50;