SF-3-172-860

Продам 1-кімнатну квартиру

Розташування: Дніпро, Новокодацький район, Червоний Камінь, Кобзарська вул.
1 Кімнат
31 м2
6/9 поверх
Ціна
35 000 $

Інформація

Продам 1-кімн. квартиру вул. Кобзарська буд. 2, Новокодацький район, ж/м Червоний Камінь.

Код об'єкту SF-3-172-860

Поруч розташовані: магазини, супермаркет АТБ, , аптеки, школа, дитячий садок, дитячий майданчик, автостоянка, тренажерний зал, зупинка транспорту.

6-й поверх 9-поверхового панельного будинку.

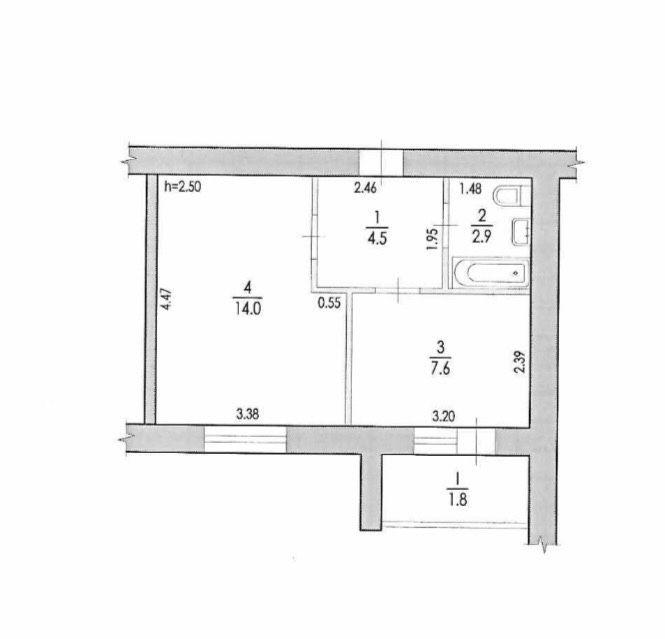
Загальна площа - 31 кв.м: кухня 7.6 кв.м, велика кімната, суміжний санвузол, балкон.

У квартирі виконано євроремонт. Продається з меблями та технікою.

Вартість - $ 35 тис. + послуги AН.

Працюємо по всьому Дніпру, є й інші варіанти – підберемо саме Вашу квартиру, пишіть запит.

Більше актуальних об'єктів у нашому телеграм чат-боті HataHome
Задавайте параметри та отримуйте свіжі пропозиції.

Ми готові допомогти Вам з усіма аспектами купівлі та оформлення нерухомості в рамках державних програм:
- Державна програма іпотечного кредитування «єОселя» під 3% та 7%.
- Постанова №206, №214, №280, №719.
- Сетрифікати на купівлю житла «єВідновлення».

35 000 $ вартість об'єкта
1 136 $ ціна за м2
30.80 м2
1 кімнат
6 Поверх
9 К-ть поверхів

Параметри

центральна Вода:
центральне Опалення:
цегла Матеріал стін:

Додатково

Дата оновлення інформації: 21.07.2025 11:23;