SF-3-128-280

Продам 2-кімнатну квартиру, ЖК Атлант 2

Розташування: Київ, Академмістечко, Святошинський район, Коцюбинське смт., Пономарьова вул.
2 Кімнат
73 м2
18/24 поверх
Ціна
89 000 $
Комісія:
5%

Інформація

Продам 2-кімнатну квартиру у житловому комплексі економ-класу «Атлант-2», вул. Пономарьова, 26, корпус 4, Коцюбинське, Бучанський район, станція метро "Академмістечко" - 10 хв. на транспорті.

Код об'єкта SF-3-128-280.

Поряд розташованні: магазини, супермаркет, школи, дитячий садок, поліклініка, аптека, салон краси, банк, кафе, відділення Нової пошти, зупинка транспорту.

Забудовник: Будівельна компанія «Атлант».

Будинок зданий у експлуатацію.

18-й поверх 24-ти поверхового будинку.

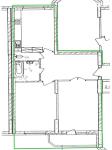
Загальна площа - 73,1 кв.м:
кухня 14,3 кв.м, 2 окремі кімнати, 1 балкон, 1 роздільний санвузол, передпокій.

У квартирі виконано євроремонт. Панорамні вікна - вид на ліс. Підігрів підлоги. Балкон утеплений та обладнаний під кабінет. Продається з сучасними меблями та технікою.

Вартість - $ 89 тис. за об'єкт + послуги АН.

Хочеш більше варіантів?
Пиши або переходь в Telegram-бот HataHomebot — шукає за параметрами, як рієлтор.

Безкоштовна консультація з усіх питань оформлення іпотеки, а також участі у держпрограмах:
єВідновлення, Постанови №206, №214, №280, №719.

Платимо гроші за рекомендацію!
Отримайте бонус, якщо по вашій рекомендації оформлена угода через нашу АН.

Інфраструктура

Громадський транспорт: метро - Академмістечко (10 хв. на транспорті);
89 000 $ вартість об'єкта
1 218 $ ціна за м2
73.10 м2
2 кімнат
18 Поверх
24 К-ть поверхів

Параметри

центральна Вода:
центральне Опалення:
моноліто-каркас Матеріал стін:

Додатково

Більше актуальних об'єктів у нашому телеграм чат-боті HataHome. Задавайте параметри та отримуйте свіжі пропозиції.

Дата оновлення інформації: 16.11.2025 11:55;