SF-3-058-539

Продам 2-кімнатну квартиру

Розташування: Київ, Чернігівська, Деснянський район, Троєщина, Радунська вул., 5
2 Кімнат
52 м2
2/10 2
Ціна
50 000 $

Інформація

Продам 2-кімнатну квартиру, вул. Радунська, 5, Деснянський район, Троєщина.

Код об'єкта SF-3-058-539.

Чудово розвинена інфраструктура: поряд- «АТБ», аптеки, поруч дитячий садок та школа, кавʼярня, відділення Нової пошти, супермаркет «Еко Маркет», стоматологія, салони краси, «This is Пивбар» та «Епіцентр». Гарне місцерозташування: під будинком зупинка маршруток, що їдуть до метро «Лісова», «Чернігівська», «Почайна», «Дарниця».

2-й поверх 10-поверхового панельного будинку.

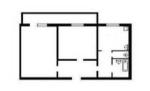
Загальна площа - 52,3 кв.м: кухня 8 кв.м, 2 окремі кімнати (17 кв.м та 11,8 кв.м), велика лоджія, роздільний санвузол, коридор.

У квартирі житловий стан.

Вартість - $ 50 тис + послуги АН.

Хочеш більше варіантів? Пиши або переходь в Telegram-бот HataHomebot — шукає за параметрами, як рієлтор

Безкоштовна консультація з усіх питань оформлення іпотеки, а також участі у держпрограмах:
єВідновлення, Постанови №206, №214, №280, №719

$ Платимо гроші за рекомендацію! Отримайте бонус, якщо по вашій рекомендації оформлена угода через нашу АН.

Інфраструктура

Громадський транспорт: метро - Чернігівська (20 хв. на транспорті);
50 000 $ вартість об'єкта
956 $ ціна за м2
52.30 м2
2 кімнат
2 Поверх
10 К-ть поверхів

Параметри

центральна Вода:
центральне Опалення:
панель Матеріал стін:

Додатково

Більше актуальних об'єктів у нашому телеграм чат-боті HataHome Задавайте параметри та отримуйте свіжі пропозиції.

Дата оновлення інформації: 30.03.2026 12:40;