Інформація в цьому оголошенні застаріла

SF-2-896-403

Продам 3-кімнатну квартиру в новобудові, ЖК Італійський квартал

Розташування: Київ, Героїв Дніпра, Оболонський район, Мінський масив, Богатирська вул., 32
3 Кімнат
100 м2
1/4 поверх
Ціна
122 000 $

Інформація

Продам 3-кімн. квартиру в житловому комплексі комфорт-класу «Італійський квартал», вул.Дубіщанська буд.9, Оболонський район, мікрорайон Мінський, станція метро «Героїв Дніпра» 15 хв.на транспорті.

Код об'єкта SF-2-896-403.

Поряд розташованні: магазини, супермаркети, школа, дитячий садок, лікарня, McDonald`s, Епіцентр, ліс Виноградар, банк, кафе, відділення Нової пошти, зупинка транспорту.

Забудовник "Київміськбуд".

Будинок зданий у 2021 році. Продаж за документами.

1-й поверх 4-поверхового монолітно-каркасного будинку.

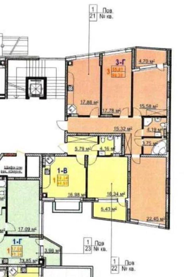
Загальна площа - 99.70 кв.м: кухня 17.88 кв.м, 3 окремі кімнати, 1 санвузол.

Квартира у будівельному стані. Індивідуальне опалення.

Вартість - $122 тис. за об'єкт + послуги АН.

Більше актуальних об'єктів у нашому телеграм чат-боті HataHome.
Задавайте параметри та отримуйте свіжі пропозиції.

Ми готові допомогти Вам з усіма аспектами купівлі та оформлення нерухомості в рамках державних програм:
- Державна програма іпотечного кредитування «єОселя» під 3% та 7%.
- Постанова №206, №214, №280, №719.
- Сертифікати на купівлю житла «єВідновлення».

Інфраструктура

Громадський транспорт: метро - Героїв Дніпра (15 хв. на транспорті);
122 000 $ вартість об'єкта
1 224 $ ціна за м2
99.70 м2
3 кімнат
1 Поверх
4 К-ть поверхів

Параметри

центральна Вода:
автономне Опалення:

Додатково

Забудовник: Київміськбуд;
Дата оновлення інформації: 02.09.2025 15:21;