Це оголошення уже закрито

SF-2-827-796

Продам 2-кімнатну квартиру, ЖК Шевченківський

Розташування: Київ, Університет, Печерський район, Центр (Печерський), Золотоустівська вул., 25
2 Кімнат
73 м2
16/21 поверх
Ціна
148 000 $

Інформація

Продам квартиру в ЖК бізнес-класу, вул. Золотоустівська, 25, Шевченківський район.

Код об'єкта SF-2-827-796

Ідеальна локація - поруч гімназія, дитячий садок, Павловський сквер, магазини, кафе. Площа Перемоги в 10 хвилинах ходьби. Зручна транспортна розв'язка. Станція метро Лук'янівська, Університет - 15 хвилин пішки.

Забудовник "Київміськбуд".

16-й поверх 21-поверхового монолітно-каркасного будинку.

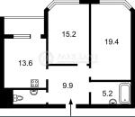
Загальна площа - 73 кв.м: кухня 14,2 кв.м, 2 окремі кімнати, балкон, 2 с/в, передпокій.

Квартира у будівельному стані.

Є автономна електроенергія - акумулятори / джерела безперебійного живлення. Інтернет оптоволоконний.

Вартість - $148 тис + послуги АН.

Більше актуальних об'єктів у нашому телеграм чат-боті HataHome
Задавайте параметри та отримуйте свіжі пропозиції.

Надаємо допомогу у кредитуванні (Державна програма «єОселя» під 3% (для військовослужбовців, медичних працівників, наукових, педагогічних працівників навчальних закладів державної обл комунальної форми власності))

Інфраструктура

Громадський транспорт: метро - Університет (10 хв. пішки);
148 000 $ вартість об'єкта
2 027 $ ціна за м2
73 м2
2 кімнат
16 Поверх
21 К-ть поверхів

Параметри

центральна Вода:
центральне Опалення:

Додатково

Дата оновлення інформації: 22.08.2025 13:26;