SF-2-637-192

Продам 4-кімнатну квартиру

Розташування: Київ, Академмістечко, Святошинський район, Академмістечко, Вернадського Академіка бул., 85
4 Кімнат
98 м2
9/9 9
Ціна
100 000 $

Інформація

Продам 4-кімнатну квартиру, бул.Вернадського буд.85, Святошинський район, мікрорайон Академмістечко, станція метро "Академммістечко" 6 хв.пішки.

Код об'єкта SF-2-637-192.

Поряд розташованні: магазини, супермаркет, школа, дитячий садок, лікарня, мед.центр, аптека, ТРЦ "Lavina mall", кінотеатр, станція метро, відділення Нової пошти, кафе, зупинка транспорту.

9-й поверх 9-поверхового цегляного будинку.

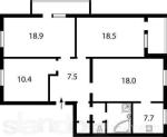
Загальна площа - 98 кв.м: кухня 8 кв.м, 4 окремі кімнати, балкон, лоджія, 1 санвузол.

Квартира у будівельному стані. В частині кімнат вже є нова проводка та оздоблення.

Вартість - $100 тис. за об'єкт + послуги АН.

Хочеш більше варіантів? Пиши або переходь в Telegram-бот HataHomebot — шукає за параметрами, як рієлтор

Безкоштовна консультація з усіх питань оформлення іпотеки, а також участі у держпрограмах:
єВідновлення, Постанови №206, №214, №280, №719

$ Платимо гроші за рекомендацію! Отримайте бонус, якщо по вашій рекомендації оформлена угода через нашу АН.

Інфраструктура

Громадський транспорт: метро - Академмістечко (6 хв. пішки, 2 хв. на транспорті);
100 000 $ вартість об'єкта
1 020 $ ціна за м2
98 м2
4 кімнат
9 Поверх
9 К-ть поверхів

Параметри

центральна Вода:
центральне Опалення:

Додатково

Дата оновлення інформації: 24.03.2026 00:51;