SF-2-221-339

Продам 2-кімнатну квартиру в новобудові, ЖК «Мира-3»

Розташування: Харків, Індустріальна, Роганський напрямок, ХТЗ, Героїв Харкова просп.
2 Кімнат
73 м2
9/9 поверх
Ціна
39 000 $

Інформація

Продам 2-комнатную квартиру в жилом комплексе эконом-класса "ЖК Мира-3". Находится между станциями метро Тракторный завод и метро Индустриальная 8-9 минут пешком, по Московскому проспекту.

Код объекта SF-2-221-339.

Развитая инфраструктура, непосредственная близость сразу 2-х станций метро, удобная транспортная развязка, наличие рядом парка, аллеи, рынка, супермаркетов ( Класс, Восторг, АТБ), детских садов, школ и больниц.

Застройщик Жилстрой-1.

Дом 4. Сдача в 4 кв. 2021г. Продажа по переуступке.

9-й этаж 9-ти этажного дома.

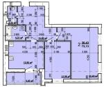
Общая площадь квартиры составляет 73,13 кв.м., комната - 22,45 кв.м, спальня - 14 кв.м, кухня – 13,9 кв.м. Большая лоджия 5 кв.м с выходом из кухни. Санузел раздельный.

Квартира в строительном состоянии. Установлены металлопластиковые окна, металлическая входная дверь, радиаторы отопления, межкомнатные перегородки. Есть возможность выкупить технический этаж и сделать двухъярусную квартиру. Дом кирпичный, с наружным утеплением стен и горизонтальной разводкой теплоподачи, что дает возможность установки индивидуального счетчика расхода тепла.

Стоимость $39 тыс. + услуги АН.

Больше актуальных объектов в нашем телеграмм чат-боте HataHomeBot
Задавайте параметры и получайте свежие предложения.

Оказываем помощь в кредитовании (ипотека, еврокредит).

Услуги дизайнера и ремонт «под ключ».

Інфраструктура

Громадський транспорт: метро - Індустріальна (8 хв. пішки);
Заклади освіти: школа, дитсадок;
Банківськи послуги: відділення банку, банкомат, термінал прийому платежів;
Побутовий сервіс: мінімаркет, супермаркет, торгівельний центр, ринок, парковка перед будинком, аптека, клініка, перукарня, пошта;
Релаксаційні сервіси: парк (сад), дитячий майданчик;
Обʼєкти громадського харчування: кафе, фастфуд, бар;
39 000 $ вартість об'єкта
533 $ ціна за м2
73.13 м2
2 кімнат
9 Поверх
9 К-ть поверхів

Параметри

центральна Вода:
немає Газ:
центральне Опалення:
цегла Матеріал стін:

Стан об’єкта

Вікна: металопластик;

Додатково

Забудовник: Жилстрой-1;
Дата оновлення інформації: 04.07.2025 12:58;