SH-214-312

Продам 2-этажный дом

Местоположение: Софиевская Борщаговка, Киевская область, Бучанский район, Кошевая ул.
4 Комнат
138 м2
5 сот.
Цена
210 000 $

Информация

Продам будинок, у пішій доступності ліцей, дитячий садочок, парк, спортивні стадіони, спортивні кружки в 200м.

Код об'єкта SH-214-312

Загальна площа - 138 м²:
Перший поверх будинку:
- Кухня-вітальня з діючим каміном, меблями до стелі з фурнітурою Blum. З технікою.
- Окрема кімната, яка може слугувати кабінетом або дитячою. У ній передбачено робоче місце, зручний розкладний диван та функціональні системи зберігання.
- Сучасний санвузол із душовою кабіною.
- Технічне приміщення, де встановлені пральна та сушильна машини, бойлер, інвертор та акумулятори. По всій площі першого поверху облаштована водяна тепла підлога.
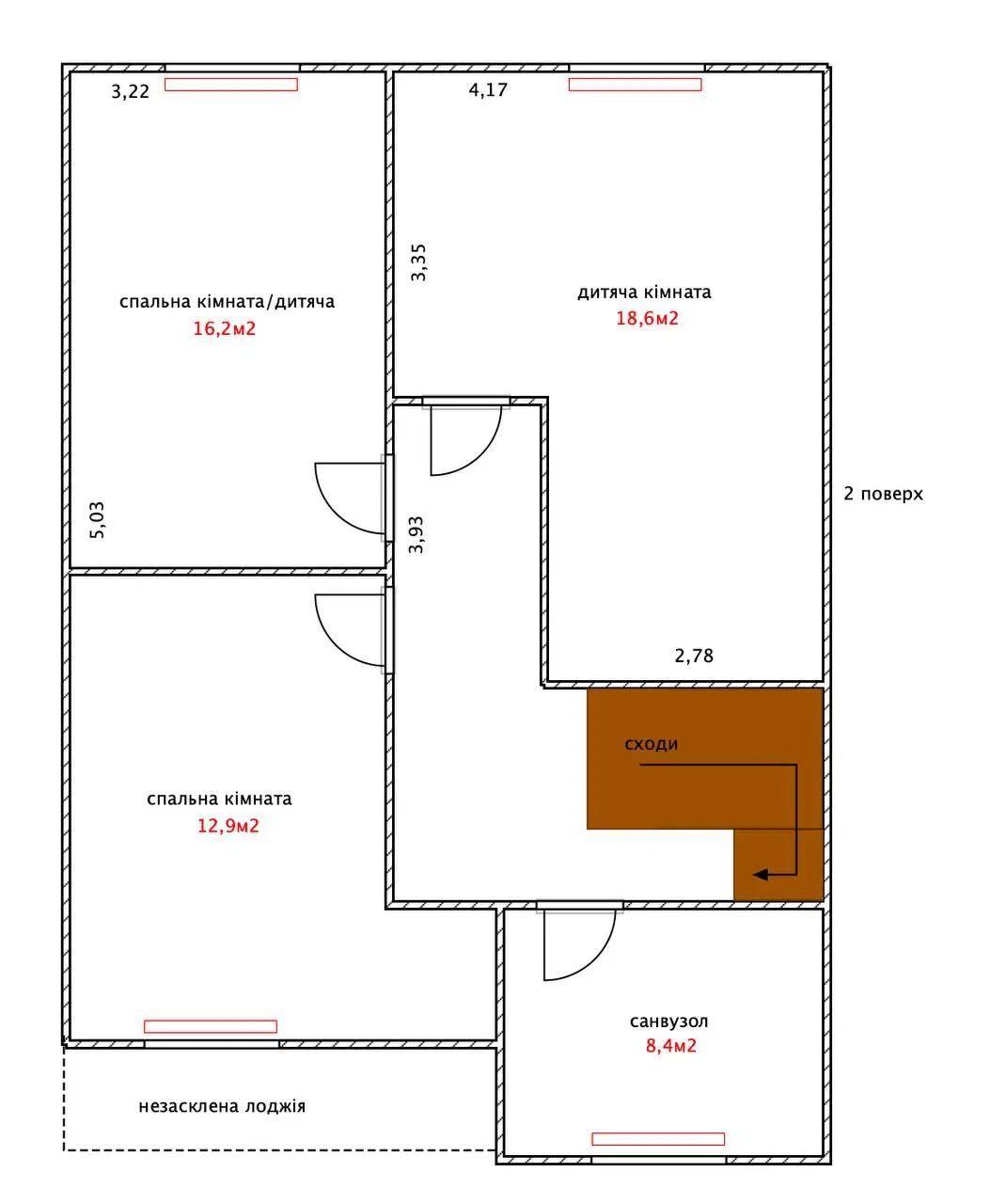
Другий поверх включає:
- Просторий санвузол із повноцінною ванною та теплою підлогою,
- Три окремі кімнати в стані під чистове оздоблення, що відкриває можливість для реалізації індивідуального дизайну.
- Одна з кімнат має вихід на відкритий балкон — чудове місце для відпочинку.
- Є зручний доступ на мансарду.
Площа ділянки 5 соток.

Автономність:
- На даху встановлено сонячні панелі потужністю 9,5 кВт, інвертор на 12 кВт і додаткові батареї на 10 кВт.
- Система «Активний споживач» дозволяє продавати надлишок електроенергії в мережу.
- Підключено нічний тариф та діє 50% знижка на електроопалення.
- На випадок блекаутів передбачено генератор на 5,5 кВт, підключений до основного щитка.
- Є можливість опалювати будинок каміном, який ефективно обігріває весь перший поверх, а тепле повітря додатково подається в дві спальні на другому поверсі.

Можливості:
- Проведені магістралі під установку кондиціонерів.
- Підведені комунікації для підключення електроприводу воріт та зарядної станції для вашого електромобіля.
- У сусідніх будинках вже заведений газ, що дає змогу за невеликі витрати легко провести газ у власний будинок.

Вартість -$210 тис + послуги АН.

210 000 $ стоимость объекта
1 522 $ цена за м2
138 м2
5 сот.
4 комнат
2 Этажность

Параметры

скважина Вода:
возможность газификации Газ:
электрическое Отопление:
септик Канализация:
газоблок Материал стен:

Дополнительная информация

Дата обновления информации: 12.11.2025 18:45;