SF-3-219-065

Продам 3-комнатную квартиру в новостройке, ЖК «Печерск Плаза»

Местоположение: Киев, Зверинецкая, Печерский район, Зверинец, Михаила Бойчука ул., 19А
3 Комнат
96 м2
8/11 этаж
Цена
230 000 $

Информация

Продам 3-кімнатну квартиру в житловому комплексі преміум-класу «52 Перлина (Pechersk Plaza)», вул. Бойчука, 19-А, Печерський район, Звіринець.

Код об'єкта SF-3-219-065

Поруч бізнес-центри, магазини та бутіки, ресторани та кав'ярні, бари та паби, лікарні, аптеки та приватні медичні кабінети. У пішій доступності супермаркети «Сільпо», «Велика Кишеня», Національний ботанічний сад імені Гришка. До метро "Звіринецька" 10 хвилин пішки.

8/11 поверх | Будинок: монолітно-каркасний
Забудовник: Kadorr Group

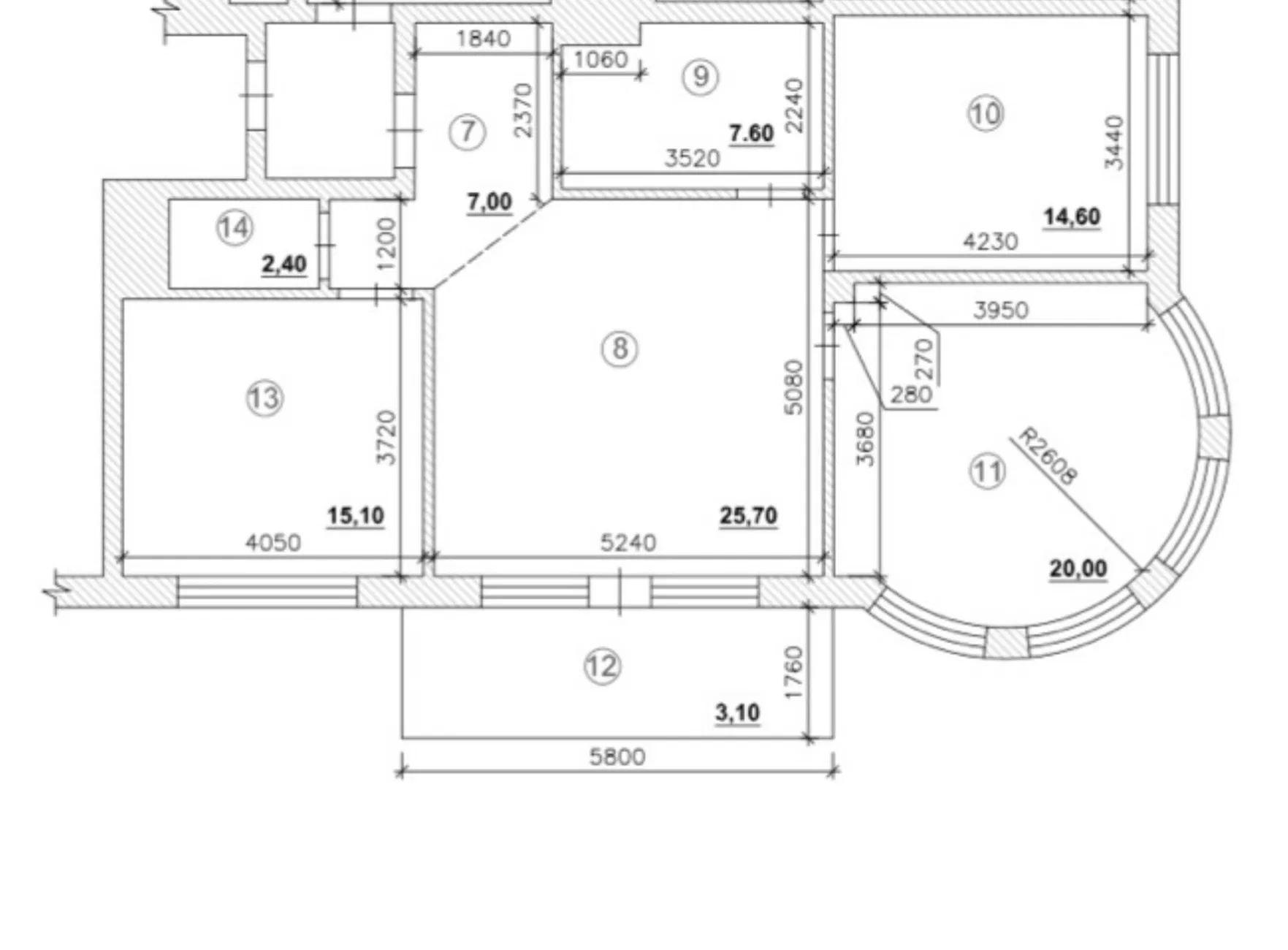
Загальна площа: 95,5 кв.м.
Площа кухні: 16 кв.м.
Особливості планування: кухня, 3 окремі кімнати, балкон, роздільний санвузол, передпокій.

Стан квартири — квартира у будівельному стані. Стіни оштукатурені, стяжка підлоги.

Ціна: $ 230 тис. + послуги АН.

Хочеш більше варіантів?
Пиши або переходь в Telegram-бот HataHomebot — шукає за параметрами, як рієлтор.

Безкоштовна консультація з усіх питань оформлення іпотеки, а також участі у держпрограмах:
єВідновлення, Постанови №206, №214, №280, №719.

Платимо гроші за рекомендацію!
Отримайте бонус, якщо по вашій рекомендації оформлена угода через нашу АН.

Инфраструктура

Общественный транспорт: метро - Зверинецкая (10 мин. пешком);
230 000 $ стоимость объекта
2 408 $ цена за м2
95.50 м2
3 комнат
8 Этаж
11 Этажность

Параметры

центральная Вода:
автономное Отопление:
кирпич Материал стен:

Дополнительная информация

Застройщик: Kadorr Group;
Дата обновления информации: 18.11.2025 16:15;