SF-3-210-026

Продам 1-комнатную квартиру в новостройке

Местоположение: Бровары, Киевская область, Анатолія Луценка вул., 27
1 Комнат
37 м2
5/8 этаж
Цена
55 000 $

Информация

Без комісії! Продаж 1-кімн. квартири ЖК Скандія, вул. Анатолія Луценка, буд. №27, м. Бровари, Броварський район, станція метро "Лісова" - 10 хв. на транспорті.

Код об'єкта SF-3-210-026

Поряд розташовані: магазини, школа, дитячий садок, аптека, салон краси, кафе, відділення Нової пошти, зупинка транспорту.

5-й поверх 7-поверхового будинку, середина будинку (не кутова), панорамні вікна виходять у двір та на озеро, парк.

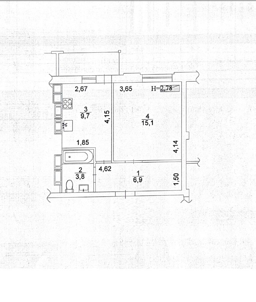
Загальна площа - 36,6 кв.м., спальна кімната 15,1 кв.м., кухня 9,7 кв.м. з виходом на балкон., санвузол, гардеробна.

Тепла затишна квартира готова до проживання, встановлена кухня з індукційною варильною плитою, електричною духовою шафою, холодильником. Виконано сучасний ремонт, облаштована гардеробна кімната-шафа.

Індивідуальний газовий котел забезпечує опалення та підігрів води, підлоги. Мінімальні витрати на утримання.

Вартість - $55 тис

Инфраструктура

Банковские услуги: терминал приема платежей;
Бытовой сервис: минимаркет, стоянка возле дома, аптека, парикмахерская, почта;
Релаксационные сервисы: парк (сад), детская площадка, лес, озеро / река;
Объекты общепита: кафе, фастфуд;
55 000 $ стоимость объекта
1 503 $ цена за м2
36.60 м2
1 комнат
5 Этаж
8 Этажность

Параметры

центральная Вода:
есть Газ:
автономное, газовое Отопление:
холодная вода, газ Счетчики:
оптоволокно Интернет:
оптоволокно Телевидение:

Благоустройство

Лифт: пассажирский;
Вид из окна: двор, парк (сад), озеро;
Подогрев пола: электро;
Кондиционирование: сплит-системы;
Водонагреватель: газовая колонка;
Бытовая техника: варильная панель, электроплита, холодильник, вытяжка, стиральная машина в санузле, кондиціонер;
Дополнительно: панорамные окна, мебель, Wi-Fi;
Безопасность: охранник, охраняемая территория, забор;

Дополнительная информация

Тип двора: закрытый;
Целевое назначение (по документам БТИ): квартира;
Собственность: частная;
Возможность осмотра: так;
Дата обновления информации: 19.09.2025 11:54;