SF-3-203-515

Продам 2-комнатную квартиру в новостройке, ЖК Svitlo Park

Местоположение: Киев, Выдубичи, Голосеевский район, Нижняя Теличка, Столичное шоссе, 1Б
2 Комнат
65 м2
11/24 этаж
Цена
75 900 $
Комиссия:
5%

Информация

Постанова. Продам 2-кімнатну квартиру в житловому комплексі комфорт-класу «Svitlo Park», Столичне шосе, Голосіївський район, Теличка.

Код об'єкта SF-3-203-515

Неподалік будинку розташований красивий парк з мальовничими озерами. Територія житлового комплексу добре обладнана для відпочинку, занять спортом або відпочинку. Крім того, на території знаходяться всі необхідні об'єкти соціальної інфраструктури, а саме: кафе, продуктові магазини, салони краси, навчальні заклади, бутіки, аптеки, тренажерні зали. У пішій доступності станція метро Видубичі.

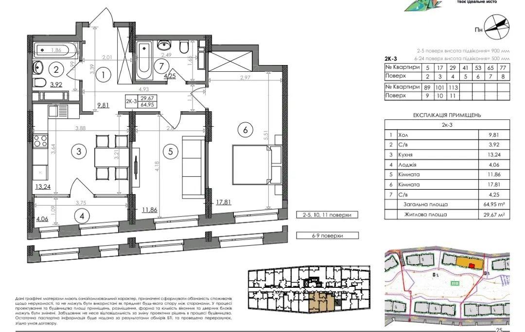
11/24 поверх | Будинок: монолітно-каркасний
Забудовник: Futura hata

Загальна площа: 64,95 кв.м.
Площа кухні: 13,24 кв.м.
Особливості планування: кухня, 2 окремі кімнати (11,86 кв.м та 17,81 кв.м), лоджія, 2 санвузли, хол.

Стан квартири — квартира у будівельному стані.

Ціна: $ 75,9 тис. + послуги АН.

Хочеш більше варіантів?
Пиши або переходь в Telegram-бот HataHomebot — шукає за параметрами, як рієлтор.

Безкоштовна консультація з усіх питань оформлення іпотеки, а також участі у держпрограмах:
єВідновлення, Постанови №206, №214, №280, №719.

Платимо гроші за рекомендацію!
Отримайте бонус, якщо по вашій рекомендації оформлена угода через нашу АН.

Инфраструктура

Общественный транспорт: метро - Выдубичи (15 мин. пешком);
75 900 $ стоимость объекта
1 169 $ цена за м2
64.95 м2
2 комнат
11 Этаж
24 Этажность

Параметры

центральная Вода:
центральное Отопление:
монолито-каркас Материал стен:

Дополнительная информация

Застройщик: Futura hata;
Дата обновления информации: 09.09.2025 01:39;