SF-3-202-247

Продам 1-комнатную квартиру в новостройке, ЖК Современный квартал

Местоположение: Киев, Политехнический институт, Соломенский район, Отрадный, Любомира Гузара пр-т, 13
1 Комнат
36 м2
14/17 этаж
Цена
53 000 $

Информация

Продам 1-кімн. квартиру в ЖК «Сучасний квартал», пр. Любомира Гузара, буд. 13, станція метро "КПІ" — 20 хв. на транспорті.

Код об'єкта SF-3-202-247

14/17 пов. будинку.

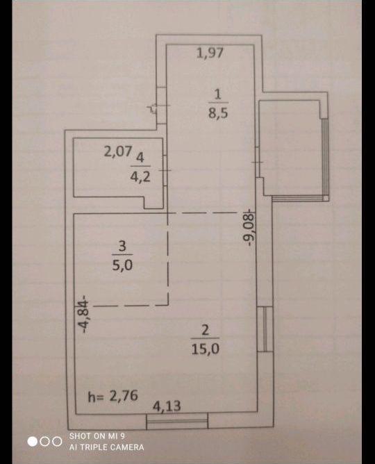
Загальна площа: 36.2 м²
Вільне планування.

Квартира після будівельників.

Ціна: $53 тис + послуги АН

Безкоштовна консультація з усіх питань оформлення іпотеки, а також участі у держпрограмах:
єВідновлення, Постанови №206, №214, №280, №719

Платимо гроші за рекомендацію! Отримайте бонус, якщо по вашій рекомендації оформлена угода через нашу АН.

Инфраструктура

Общественный транспорт: метро - Политехнический институт (20 мин. на транспорте);
53 000 $ стоимость объекта
1 464 $ цена за м2
36.20 м2
1 комнат
14 Этаж
17 Этажность

Параметры

центральная Вода:
центральное Отопление:
кирпич Материал стен:

Дополнительная информация

Дата обновления информации: 12.01.2026 11:04;