SF-3-201-303

Продам 2-комнатную квартиру в новостройке, ЖК Krona Park 2

Местоположение: Бровары, Киевская область, Черновола Вячеслава ул., 10
2 Комнат
70 м2
10/17 этаж
Цена
70 500 $

Информация

Продам 2-кімнатну квартиру у житловому комплексі бізнес-класу «Krona Park 2», буд 10, Броварський район, місто Бровари, станція метро "Лісова" — 20 хв. на транспорті

Код об'єкта SF-3-201-303

Розвинена інфраструктура: у пішій доступності супермаркет
ТРЦ, парк, зелена зона, дитячий садок, дитячий майданчик.

Забудовник "Alliance Novobud".

Здача будинку I-II квартал 2026 року.

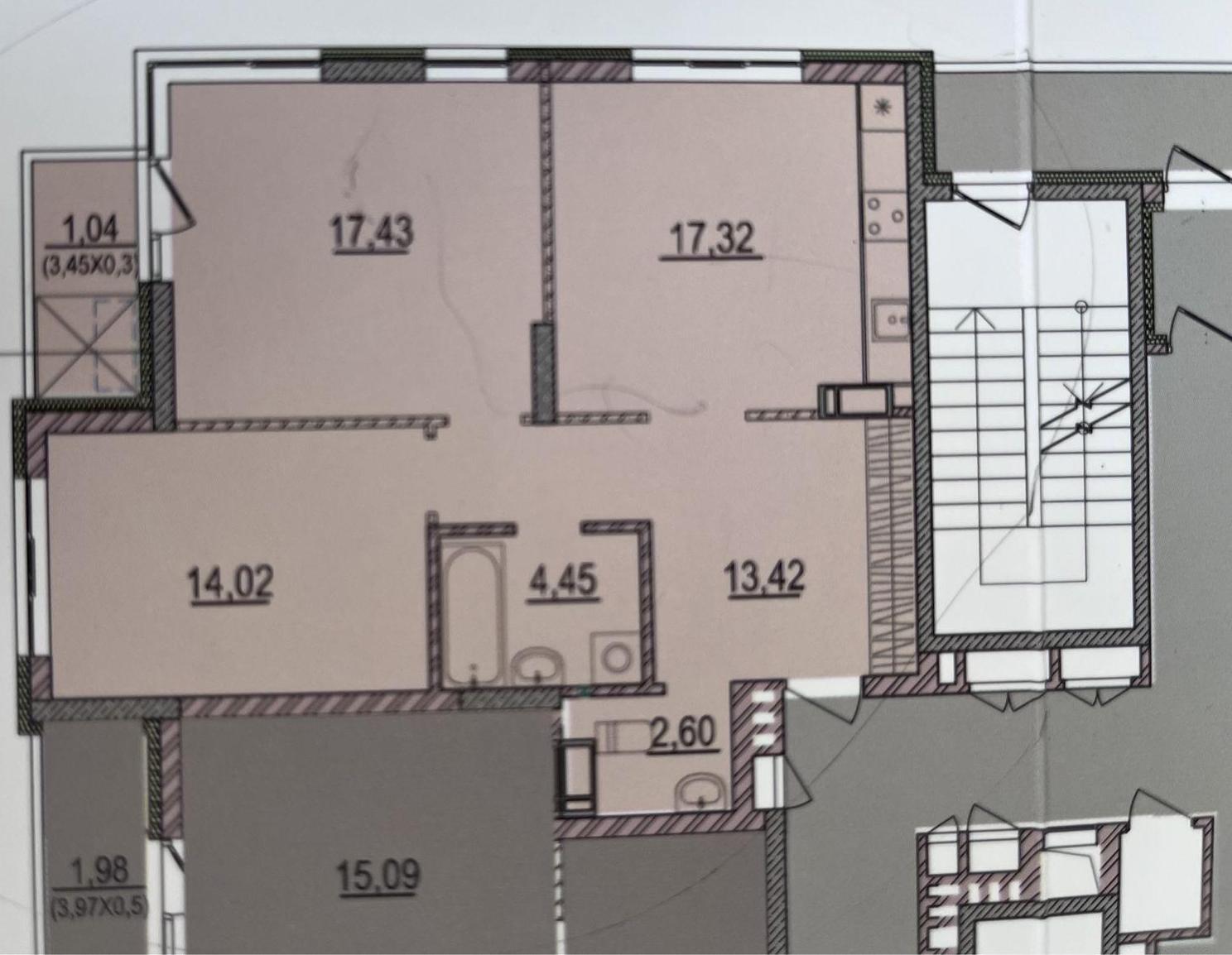
10-й поверх 17-поверхового будинку.

Загальна площа - 70,28 кв.м., кухня 17.32 кв.м, 2 кімнати

У квартирі будівельний стан.

Вартість - $70,28 тис + послуги АН.

Надаємо допомогу у кредитуванні (Державна програма «єОселя» під 3% (для військовослужбовців, медичних працівників, наукових, педагогічних працівників навчальних закладів державної обл комунальної форми власності))

70 500 $ стоимость объекта
1 003 $ цена за м2
70.28 м2
2 комнат
10 Этаж
17 Этажность

Параметры

центральная Вода:
автономное Отопление:
кирпич Материал стен:

Дополнительная информация

Більше актуальних об'єктів у нашому телеграм чат-боті HataHome Задавайте параметри та отримуйте свіжі пропозиції.

Дата обновления информации: 16.01.2026 18:30;