Это объявление уже закрыто

SF-3-052-313

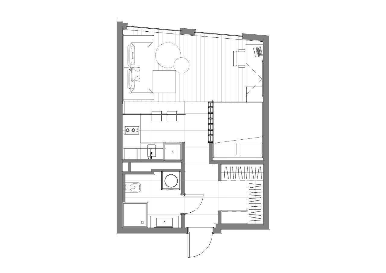
Продам 1-комнатную квартиру в новостройке, ЖК Старт

Местоположение: Киев, Лукьяновская, Шевченковский район, Лукьяновка, Вильгельма Котарбинского ул.
1 Комнат
31 м2
11/26 этаж
Цена
63 000 $

Информация

Продам 1-кімнатну квартиру в ЖК бізнес-класу «Старт», вул.Котарбинського 24 , Шевченківський район, Лук`янівка, станція метро "Лук`янівська" 5 хв.пішки.

Код об'єкта SF-3-052-313

Поряд розташовані: магазини, супермаркет, школа, дитячий садок, клініка, мед.центр, ТЦ "Квадрат", ТЦ "Променада", кінотеатр "Київська Русь", банк, ресторани, кафе, відділення Нової пошти, станція метро, зупинка транспорту, стадіон Старт, ліцей 38, гімназія - 153.

Забудовник «Bud Development».

Введений в експлуатацію, отримане право власності.
11-й поверх 18-поверхового монолітно-каркасного будинку .

Загальна площа - 31,1 кв.м, студія, лоджія засклена,1 санвузол.
Панорамні вікна.
Квартира у будівельному стані.

Вартість - $63 тис. за об'єкт + послуги АН.

Більше актуальних об'єктів у нашому телеграм чат-боті HataHome
Задавайте параметри та отримуйте свіжі пропозиції.

Инфраструктура

Общественный транспорт: метро - Лукьяновская (10 мин. пешком);
63 000 $ стоимость объекта
2 026 $ цена за м2
31.10 м2
1 комнат
11 Этаж
26 Этажность

Параметры

центральная Вода:
центральное Отопление:

Дополнительная информация

Дата обновления информации: 25.11.2025 12:16;