Информация по этому объявлению устарела

SF-3-050-240

Продам 2-комнатную квартиру, ЖК Navigator 2

Местоположение: Киев, Почайна, Оболонский район, Оболонь, Коноплянская ул., 22
2 Комнат
77 м2
22/25 этаж
Цена
77 000 $

Информация

Продам квартиру, вул. Коноплянська, 22, Оболонський р-н., ст.м. «Мінська» та «Оболонь» 7 хв. транспортом.
Автобуси і маршрутні таксі дозволяють доїхати і до інших районів столиці.

Код об'єкта SF-3-050-240

Поруч ТРЦ Караван.

Забудовник "ДБК-ЖИТЛОБУД"

Продаж по переуступці. Будинок 2.

22-й поверх 25-поверхового монолітно-каркасного будинку.

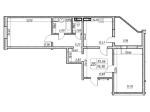
Загальна площа - 76,96кв.м.: 2 окремі кімнати, велика кухня, с/в роздільний, 1 лоджія.

Вартість - $77 тис + послуги АН.

Більше актуальних об'єктів у нашому телеграм чат-боті HataHome
Задавайте параметри та отримуйте свіжі пропозиції.

Инфраструктура

Общественный транспорт: метро - Почайна (50 мин. пешком, 15 мин. на транспорте);
77 000 $ стоимость объекта
1 000 $ цена за м2
77 м2
2 комнат
22 Этаж
25 Этажность

Параметры

центральная Вода:
центральное Отопление:

Дополнительная информация

Дата обновления информации: 10.12.2024 01:05;