Информация по этому объявлению устарела

SF-2-819-605

Продам 2-комнатную квартиру в новостройке

Местоположение: Днепр, Амур-Нижнеднепровский район, Калиновая, Янтарная ул.
2 Комнат
54 м2
2/12 этаж
Цена
47 500 $

Информация

Продам 1-кімнатну квартиру в житловому комплексі комфорт-класу «Янтарний», вул. Янтарна, 75А, Індустріальний район, мікрорайон Клочко-6.

Представлені й інші варіанти планувань та метраж у даному ЖК.

Код об'єкта SF-2-819-605

Поруч розташовані: магазини, супермаркет, школа, дитячий садок, лікарня, дит.стоматологія, дит.майданчик, ТРЦ "Караван", фітнес-центр, стадіон, парковка, озеро, зручна транспортна розв'язка.

Забудовник «TRB Development».

Термін здачі в експлуатацію - 2024 рік.

Продаж за договором переуступки прав.

2-й поверх 12-ти поверхового монолітно-каркасного будинку.
4 вікна.

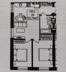
Загальна площа - 53.8 кв.м: кухня 20 кв.м, 2 окремі кімнати, санвузол.

В квартирі стан після будівельників. Опалення - індивідуальне електричне, висота стелі - 2.8 м (від підлоги до стелі),
стіни - газоблок (газобетон), підземний паркінг (44 паркомісця),
кількість квартир - 132.

Вартість - $47.5 тис + послуги АН.

Працюємо по всьому Дніпру, є й інші варіанти – підберемо саме Вашу квартиру, пишіть запит.

Більше актуальних об'єктів у нашому телеграм чат-боті HataHome
Задавайте параметри та отримуйте свіжі пропозиції.

Ми готові допомогти Вам з усіма аспектами купівлі та оформлення нерухомості в рамках державних програм:
- Державна програма іпотечного кредитування «єОселя» під 3% та 7%.
- Постанова №206, №214, №280, №719.
- Сетрифікати на купівлю житла «єВідновлення».

47 500 $ стоимость объекта
883 $ цена за м2
53.80 м2
2 комнат
2 Этаж
12 Этажность

Параметры

центральная Вода:
центральное Отопление:
монолито-каркас Материал стен:

Дополнительная информация

Застройщик: TRB Development;
Дата обновления информации: 13.08.2024 15:28;