SF-2-160-968

Продам 3-комнатную квартиру в новостройке, ЖК «Левада»

Местоположение: Харьков, Левада, Прилегающие к центру, Левада, Лисаветинская ул., 1А, корп. 1А
3 Комнат
74 м2
8/16 этаж
Цена
75 000 $

Информация

Продам 3-комнатную квартиру в жилом комплексе комфорт класса "Левада", ул. Лисаветинская 1А.

Код объекта SF-2-160-968

Отличный район, 5 минут от метро Гагарина, рядом супермаркеты, рынок, наземный транспорт, кафе, автовокзал и жд станция.

Застройщик Жилстрой - 1.

Дом 1А, дом сдан. Продажа по документам.

8-й этаж 16 этажного кирпичного дома.

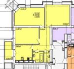
Общая площадь - 73,89 кв.м., кухня 8,9 кв.м., три комнаты 17,34 кв.м., 17,27 кв.м. и 12,87 кв.м., санузел, балкон.

Квартира в строительном состоянии.

Стоимость - $75 тыс + услуги АН.

Больше актуальных объектов в нашем телеграмм чат-боте HataHomeBot
Задавайте параметры и получайте свежие предложения.

Оказываем помощь в кредитовании (ипотека, еврокредит)
Услуги дизайнера и ремонт «под ключ».

Инфраструктура

Общественный транспорт: метро - Левада (10 мин. пешком, 10 мин. на транспорте);
75 000 $ стоимость объекта
1 015 $ цена за м2
73.89 м2
3 комнат
8 Этаж
16 Этажность

Параметры

центральная Вода:
центральное Отопление:

Дополнительная информация

Застройщик: Жилстрой-1;
Дата обновления информации: 16.06.2025 13:55;